Registrati

Registrandoti a questo servizio dichiari di aver letto e di accettare Informativa Privacy

Trova Casa - Richiesta generica

Stai cercando un immobile?
Invia una richiesta con le caratteristiche dell'immobile che stai cercando.
Gratuitamente le agenzie della zona ti contatteranno per proporti immobili simili.
Registrandoti a questo servizio dichiari di aver letto e di accettare Informativa Privacy
Trilocale Logo

Tutte le tipologie di annunci in un unico portale!!!

Trilocale Logo
  • Cerca Annunci
  • Agenzie
  • Pubblica Annuncio
  • Trova Casa
  • News immobiliari
  • Contatti
  • Accedi
  • Area Personale

Login

Hai dimenticato la password ?
Sei nuovo ?
  • Annunci
  • Pubblica
  • Profilo
  • Messaggi
  • Statistiche
  • Esci

- Appartamento in Vendita a Latina

  1. Tutta Italia
  2. Latina e provincia
  3. Latina

modalLabelNomeAgenzia

Appartamento in Vendita a Latina

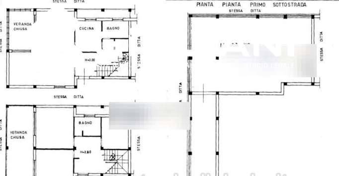
Descrizione

modalLabelDescrizione

Caratteristiche

Tipologia modalLabelTipologia
Arredamento modalLabelArredamento
Riscaldamento modalLabelRiscaldamento
Superficie modalLabelSuperficie
Vani modalLabelVani
Condizioni modalLabelCondizioni
Occupazione modalLabelOccupazione
Anno di costruzione modalLabelAnno
Piano modalLabelPiano
Cucina modalLabelCucina
Cam.Letto modalLabelCameraLetto
Ascensore modalLabelAscensore
Bagni modalLabelBagni
Classe Energetica modalLabelClasseEnergetica
Contratto modalLabelContratto
Spese Condominiali modalLabelEurSpese

Dettagli Esterni

Terrazzo modalLabelTerrazzo
Balcone modalLabelBalcone
Cantina modalLabelCantina
Giardino modalLabelGiardino
Posto Auto modalLabelPostoAuto
Box Auto modalLabelBoxAuto
Box Auto Info modalLabelBoxAutoInfo

Dettagli dell'asta

Data esecuzione asta modalLabelDataAsta
Rialzo minimo modalLabelRialzoAsta
Tribunale di modalLabelTribunaleAsta
Tipologia di asta modalLabelTipologiaAsta

Richiedi informazioni senza impegno

modalLabelNomeAgenzia2

modalLabelViaAgenzia
Telefona
ANNUNCI AGENZIA
modalLabelNomeAgenzia2

modalLabelNomeAgenzia2

modalLabelViaAgenzia
Telefona
ANNUNCI AGENZIA

Richiedi informazioni senza impegno

Annunci simili:

Annunci simili:

Latina

Appartamento in Vendita

€ 141013

  • 103 m² Superficie
  • 1 locali
  • 1 box

Latina

Appartamento in Vendita

€ 155213

  • 120 m² Superficie
  • 1 locali
  • 1 box

Latina

Appartamento in Vendita

€ 164657

  • 80 m² Superficie
  • 1 locali
  • 1 box

Latina

Appartamento in Vendita

€ 170236

  • 375 m² Superficie
  • 1 locali
  • 1 box

Condividi annuncio

  • Email
  • Facebook
  • Whatsapp
  • Messenger
  • Twitter

Richiesta informazioni

Bilocale.it
  • Pubblica Annuncio
  • Chi siamo
  • Vantaggi
  • I nostri Partner
  • Blog
  • Contattaci
  • Home
Ricerche Rapide
  • Vendita
  • Affitto
  • Residenziale
  • Case Nuove
  • Commerciale
  • Case Vacanze
  • Stanze
Link utili
  • Cerca Annunci
  • Cerca Agenzie
  • Trova Casa
  • Accedi


Copyright © 2014-2024 bilocale.it - Portale annunci immobiliari - Tutti i diritti riservati - info@bilocale.it- P.I.03630950164
Contatti